Vous allez adorer investir
avec Inmobat Costablanca.
Trouvez le bien idéal grâce à nos conseiller immobilier.
S.L. C/ JOSE GARCIA FERRANDEZ, 3 03205 ELCHE - ALICANTE
info@inmobat-costablanca.com
Vente - OPORTUNIDAD PARCELAS A LA VENTA EN PEÑA DE LAS AGUILAS
03205 Elche
329000
Description
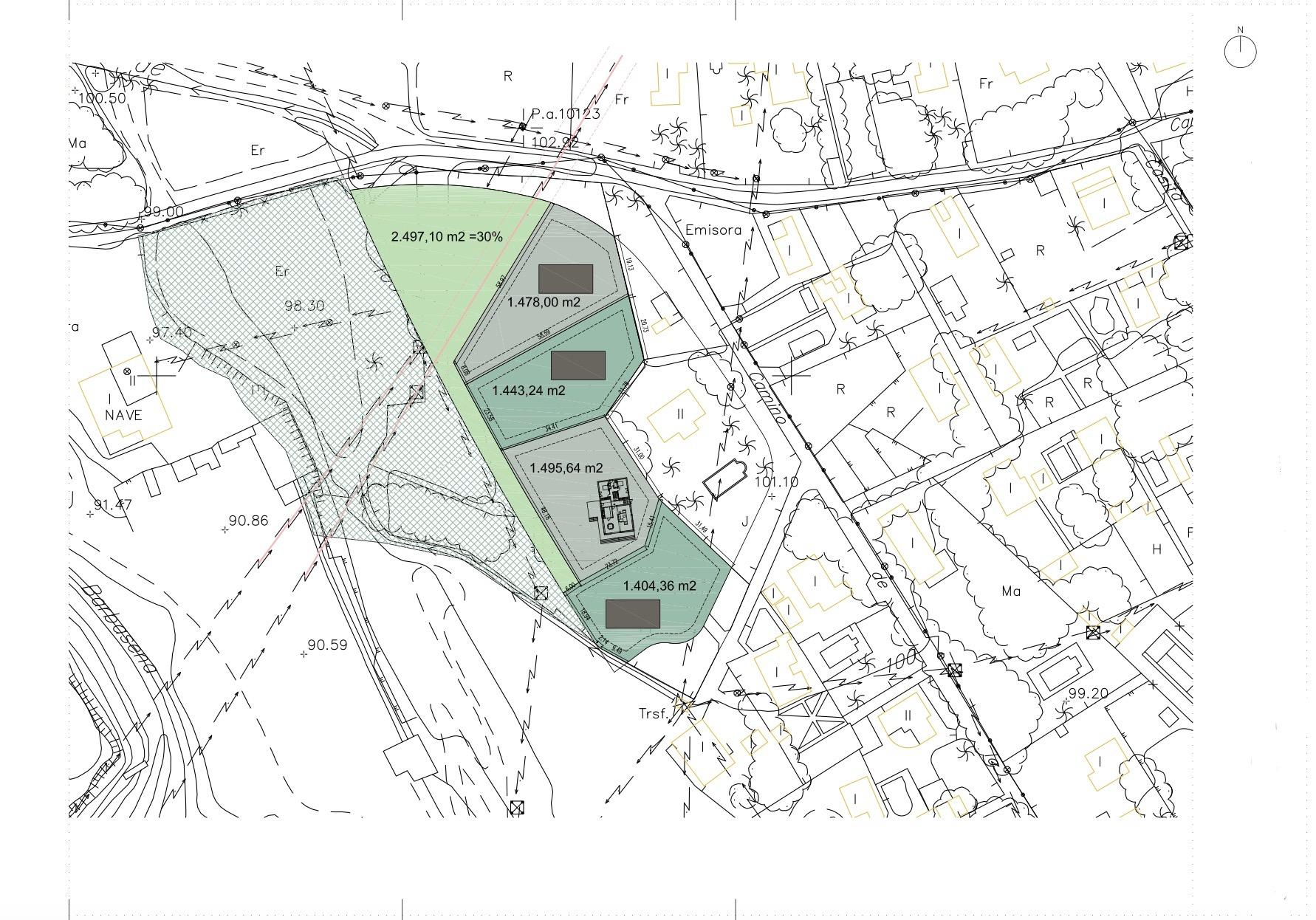
Vendemos en exclusiva parcela urbanizable de 8932m2 en zona Peña las águilas, con posibilidad de segregar en 3 parcelas o división horizontal creando 4 parcelas y una zona común, pudiendo construir 4 chalets independientes de 380m2. También incluye una parcela rústica pegada de 7050 m2. Proyecto muy interesante no te lo pierdas
L'essentiel
Type de bien Terrain
Terrain 8932 m²
Surface habitable 8932 m²
Date de construction .
L'intérieur
Etat général Bon état
Chauffage Oui
Climatisation Oui
Conforme PMR Oui
L'extérieur
Etat général Bon état
Piscine Oui
Les photos
Vous êtes intéressé par ce bien ?
Vous pouvez nous contacter par téléphone
09 65 04 94 16
ou bien nous laisser vos coordonnées dans le formulaire suivant. Nous vous contacterons dans les plus brefs délais.
92% de clients satisfaits
1 millions de personnes logés
Des conseillers à votre écoute
